装修案例


集各种风格,各种户型,各种高清优质装修效果图

欧式古典 现代简约 新古典 雅致主义 美式乡村 现代前卫 新中式 地中海式 其他
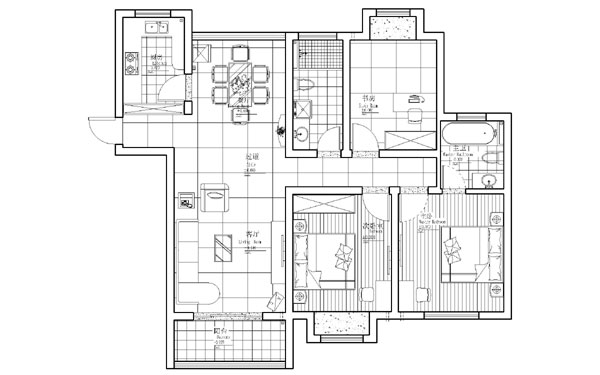
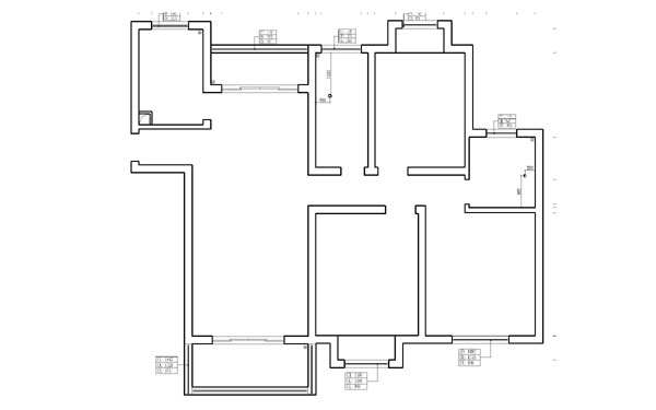
  汇丰凯苑
  房屋户型: 普通住宅
  建筑面积: 121-180平米
  装修风格: 欧式古典
  所在城市: 无锡
  本案设计师信息
高级设计师- 陈越
作品:22套 [关注:300人]
中国装饰协会高级会员 专业设计师 
设计理念:主张理性科学的设计方法,讲究设计策略,善于解决问题,注重塑造作品气质。设计是一种心态,是一种感受,是一种开心的舒适的生活方式。 
代表作品:清水湾 政和花园 东方今典 建业森林半岛 经典花园 金色水岸 香江帝景
汇丰凯苑
相关案例
汇丰凯苑
家装案例
中乐设计方案
水岸东方

CopyRight 2022-2023 无锡富元装饰装潢有限公司    联系人:王经理   15190291888    公司地址:无锡市梁溪区水沟头153号    苏ICP备2022024227号-1